A LOUER – LYON – 453 m² non divisibles
Référence : 2141098-0L
Votre contact
Geoffrey
FANJAUD
Consultant Bureaux

06 17 46 80 88
g.fanjaud@omnium1947.com
06 17 46 80 88
g.fanjaud@omnium1947.com
Votre contact pour ce bien
Geoffrey
FANJAUD
Consultant Bureaux
06 17 46 80 88
g.fanjaud@omnium1947.com
A LOUER – LYON – 453 m² non divisibles
Référence : 2141098-0L
Description
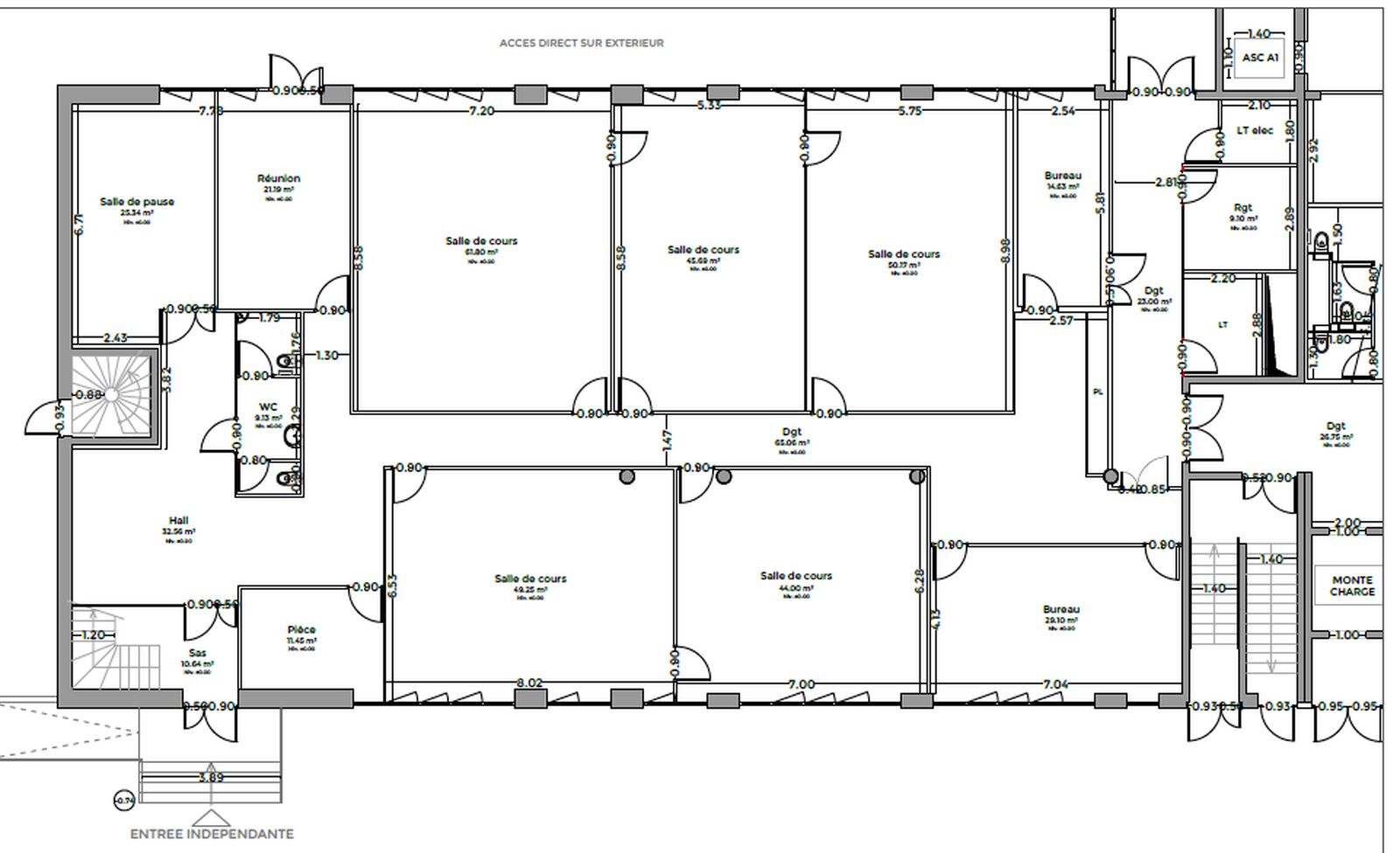
A louer - bureaux pouvant recevoir du public (ERP), de 453m², au coeur de Confluence, à proximité du pôle commercial et du tramway.
Actuellement occupé par une école, la surface se compose de 5 grandes salles (entre 45 et 62m²), de 2 bureaux, d'une salle de réunion, d'un espace détente et de sanitaires privatifs.
Le tout est complétée d'une grande terrasse donnant sur les jardins aquatiques de Confluence.
Idéal pour des écoles supérieures et centres de formations, cabinets médicaux, activités de sports et loisirs ne nécessitant pas une grande hauteur sous plafond.
Votre contact : Geoffrey FANJAUD
Consultant Département Bureaux
06 17 46 80 88
Les informations sur les risques auxquels ce bien est exposé sont disponibles sur le site Géorisques : www.georisques.gouv.fr
ERP : 5ème catégorie
Equipement
5 grandes salles
2 bureaux
1 salle de réunion
Wc privatifs
Baie de brassage
Courant fort et faible
Climatisation réversible
Une entrée principale
Deux sorties de secours
Surface RDC : 453 m²
Annonces similaires
Bureaux
A LOUER – LYON – 490 m² non divisibles
A louer, nous vous proposons 490m² de bureaux, au coeur de la Confluence, ce quartier de la presqu'ile vivant, central...
Bureaux
A LOUER – LYON – 1 551 m² divisibles à partir de 150 m²
RARE / A louer nous vous proposons 1731m² de bureaux (divisible à partir de 150m²), au coeur de la Confluence,...
Demande de rendez-vous
A LOUER – LYON – 453 m² non divisibles