A VENDRE – VILLEURBANNE – 7156 m² divisibles à partir de 359 m²
Référence : 1418335-0V
Votre contact
Sophie
MEZIN
Associée - Directrice Département Bureaux

06 67 30 99 26
s.mezin@omnium1947.com
06 67 30 99 26
s.mezin@omnium1947.com
Votre contact pour ce bien
Sophie
MEZIN
Associée - Directrice Département Bureaux
06 67 30 99 26
s.mezin@omnium1947.com
A VENDRE – VILLEURBANNE – 7156 m² divisibles à partir de 359 m²
Référence : 1418335-0V
Description
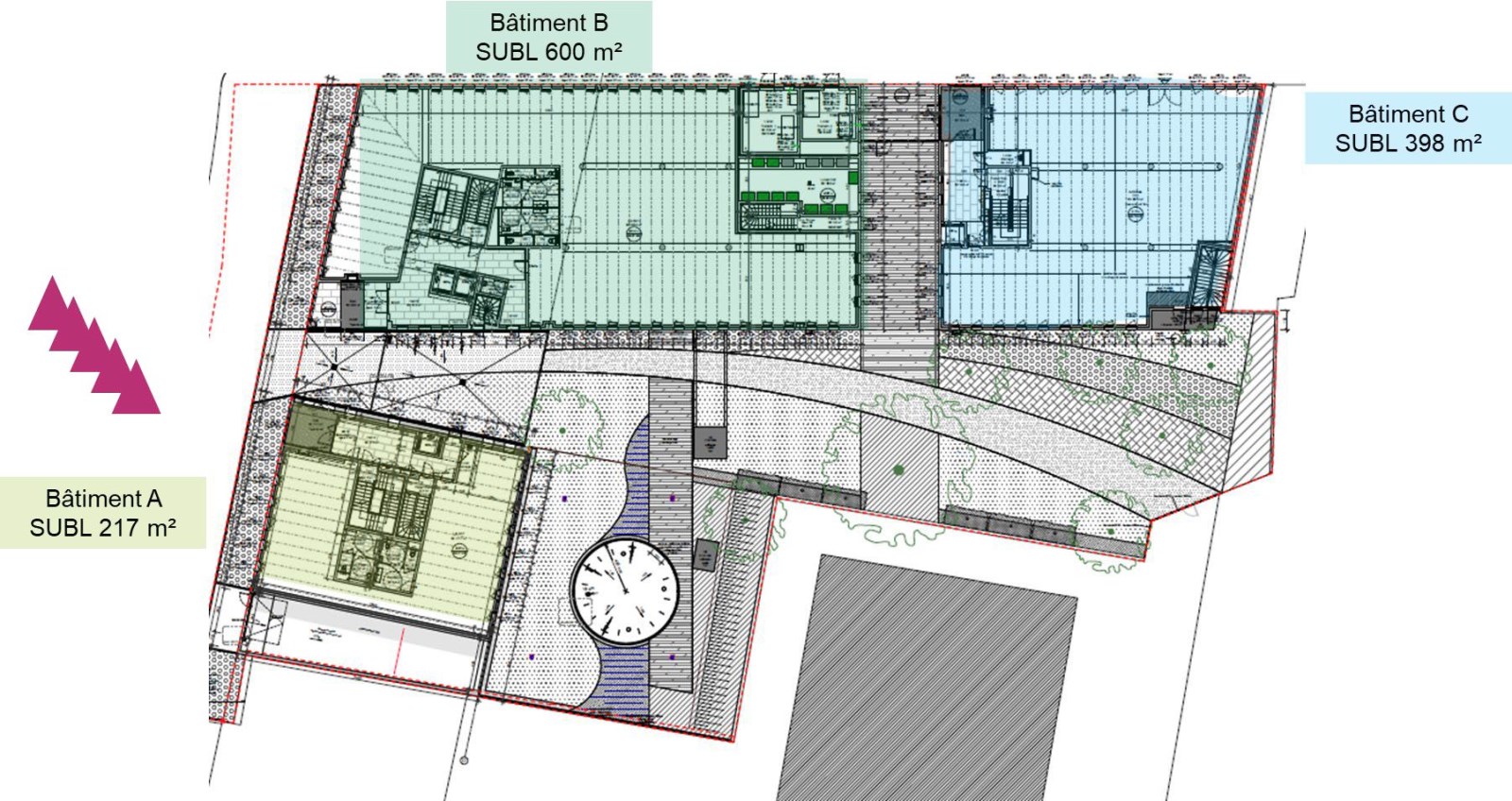
OMNIUM vous propose à la vente ou également, à la location, des plateaux de bureaux neufs au sein de Be Flex, immeuble tertiaire situé à proximité du campus universitaire de la Doua. Les bâtiments sont reliés permettant de louer un plateau de 1800 m² environ et disposent de terrasses et jardins. De nombreux parkings sont disponibles en sus.
Métro Lignes A et B : Charpennes à 15 min
Tram Lignes T1 et T4 : Condorcet
Bus Lignes : C2, C17, C26, 37, 69, 70
Route Proches de grands axs : A42, A46, bd Périphérique Laurent Bonnevay
Aéroport Lyon Saint Exupéry à 20 min en voiture
SNCF Gare TGV Lyon Part-dieu à 20 min
Votre contact : Sophie MEZIN
Directrice Générale - Associée
06 67 30 99 26
Les informations sur les risques auxquels ce bien est exposé sont disponibles sur le site Géorisques : www.georisques.gouv.fr
- Bureaux livrés aménagés non cloisonnés,
- Certification BREEAM Very Good
- Labellisation E+C-
- Label WIREDSCORE "certified"
-Façades en béton lasuré
- Menuiseries en aluminium thermolaqué
- Store intérieur ou extérieur
- Faux-plafonds avec luminaires LED intégrés
- Faux plancher technique avec dalles moquette et prises de courant
- Chauffage/rafraichissement à partir d'une thermofrigopompe à variation de débit permettant de faire du chaud et du froid simultanément sur l'ensemble de la zone (réseau 4 tubes).
- Mise en place d'attentes tisaneries dans les lots.
- 5 locaux d'archives représentant 152 m²
- 3 terrasses
- 3 balcons
- Jardins
- Locaux à vélos sécurisés + supports à vélos pour les visiteurs
- 70 emplacements de stationnement dont 19 places équipées de bornes de recharges pour véhicules électriques
-Parkings vélos :
24 au Sous-sol et 28 Rdc jardin
Surface RDC : 1024 m²
Annonces similaires
Bureaux
A LOUER – VILLEURBANNE – 7156 m² divisibles à partir de 359 m²
OMNIUM vous propose à la location ou également, à la vente des plateaux de bureaux neufs au sein de Be...
Bureaux
A LOUER – VILLEURBANNE – 1 112 m² non divisibles
OMNIUM vous propose à la location un bâtiment tertiaire indépendant de 1112 m² sur 3 niveaux au sein du Campus...
Demande de rendez-vous
A VENDRE – VILLEURBANNE – 7156 m² divisibles à partir de 359 m²