A VENDRE – LYON 6 – 203 m² non divisibles
Référence : 1385487-0V
Votre contact
Alexis
NOEL
Independant retailer specialist

06 78 72 59 67
a.noel@omnium1947.com
06 78 72 59 67
a.noel@omnium1947.com
Votre contact pour ce bien
Alexis
NOEL
Independant retailer specialist
06 78 72 59 67
a.noel@omnium1947.com
A VENDRE – LYON 6 – 203 m² non divisibles
Référence : 1385487-0V
Description
Omnium vous propose, à la vente, ce local de 203m² en rez-de-chaussée au coeur du 6ème arrondissement, à proximité du métro Foch. Disposant d'un accès indépendant sur rue, ce local permet la réception de public (ERP).
Bus Lignes C4 et 27 : Foch
Bus Ligne C6 Duquesne - Foch
SNCF Gare Lyon-Part-Dieu à 10min en C6
Métro Ligne A : Foch
Vélo'v à proximité
À quelques pas de cette adresse, vous trouverez facilement les lignes de bus C4, 27 et C6 desservant les arrêts Foch et Duquesne-Foch. La gare Lyon-Part-Dieu est également accessible en seulement 10 minutes avec la ligne C6. Pour un déplacement plus rapide, le métro ligne A relie également l'adresse. Enfin, des stations Vélo'v se trouvent à proximité pour vos déplacements à vélo.
- OFFRE RARE
- Belle surface de commerce de 203m², en rez-de-chaussée, au coeur du 6ème arrondissement (triangle d'or), à proximité du métro Foch.
- Ce local dispose d'une entrée indépendante sur rue, d'une vitrine et permet la réception de public (ERP).
- Beaucoup de potentiel !
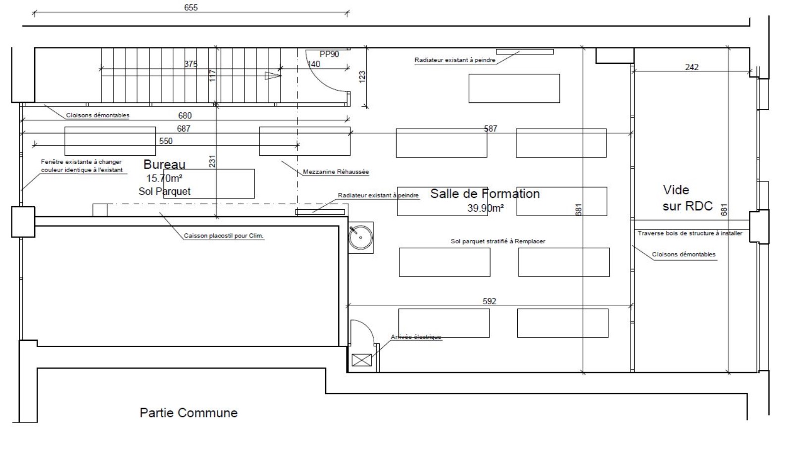
- AMENAGEMENT ACTUEL :
- Au rez-de-chaussée :
- - 3 Bureaux
- - 1 Grand open-space ou salle de formation
- - 1 Cuisine
- - Des Sanitaires (PMR)
- En mezzanine :
- -1 bureau
- - 1 open space ou salle de réunion
- MATERIAUX/EQUIPEMENTS :
- - Sols souple effet parquet
- - Climatisation
- Une cave et un grenier complètent ce bien.
- Surface RDC : 203 m²
Annonces similaires
Locaux commerciaux
A LOUER – LYON 6 – 233 m²
SECTEUR LYAUTEY - nous vous propose un local commercial à louer secteur FOCH à LYON 6e, proximité métro A et...
Locaux commerciaux
CESSION DE BAIL – LYON 6 – 36 m² non divisibles
Secteur FOCH - A CEDER, au coeur du prestigieux 6e arrondissement de Lyon - le cabinet OMNIUM vous propose un...
Demande de rendez-vous
A VENDRE – LYON 6 – 203 m² non divisibles