A VENDRE OU A LOUER – BELIGNEUX – 916 m² non divisibles
Référence : 2143511-0
Votre contact
Alexis
MOREL
Consultant département Activité / Logistique

06 10 02 72 59
a.morel@omnium1947.com
06 10 02 72 59
a.morel@omnium1947.com
Votre contact pour ce bien
Alexis
MOREL
Consultant département Activité / Logistique
06 10 02 72 59
a.morel@omnium1947.com
A VENDRE OU A LOUER – BELIGNEUX – 916 m² non divisibles
Référence : 2143511-0
Description
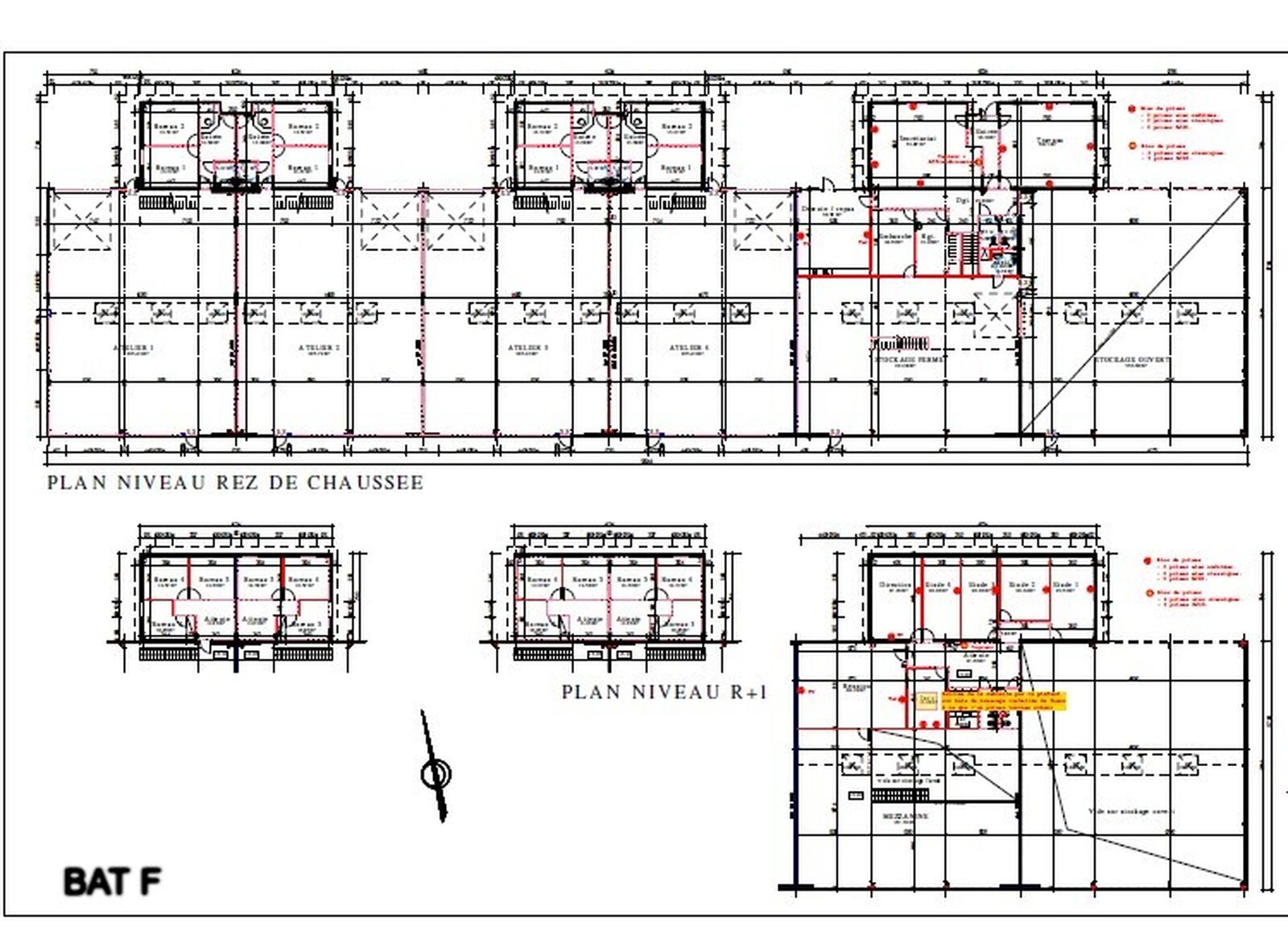
Découvrez avec OMNIUM un bâtiment d'activité mixte moderne à Béligneux, à proximité de la Plaine de l'Ain. Profitez de 916 m², avec 580 m² d'espace d'activité au RDC, équipé d'un pont roulant et d'une porte sectionnelle, et 336 m² de bureaux au R+1.
15 parkings, dont 2 bornes électriques, complètent cette offre exceptionnelle.
SNCF La Valbonne (Gare SNCF)
Bus 2B (La ligne régulière : La Costellane)
A 42 (Entrée), A 42 (Sortie Lyon, Genève)
Votre contact : Alexis MOREL
Directeur département Activité / Logistique
06.10.02.72.59
Les informations sur les risques auxquels ce bien est exposé sont disponibles sur le site Géorisques : www.georisques.gouv.fr
- - Pont roulant
- - Porte sectionnelle
- - Alarme
- - Chauffage réversible
- - 15 parkings dont 2 bornes électriques
- - Parc clos et sécurisé
- - Bâtiment de 2023
- Immeuble indépendant
- Surface RDC : 580 m²
- Equipements entrepôts : Pont roulant
- Ossature : Métallique
- Couverture : Bac acier
Annonces similaires
Locaux d'activité
A VENDRE – DAGNEUX – 741 m² non divisibles
Omnium vous propose à la vente au coeur de Dagneux, dans l 'Ain, un local d'activité en RDC et mezzanine...
Locaux d'activité
Bâtiment C – A LOUER – DAGNEUX – 565 m² non divisibles
Sur la commune de Dagneux, OMNIUM vous propose différentes surfaces de locaux d'activité au sein d'un parc clos et sécurisé...
Demande de rendez-vous
A VENDRE OU A LOUER – BELIGNEUX – 916 m² non divisibles