A LOUER – CORBAS – 6 061 m² divisibles à partir de 1 247 m²

Référence : 1076942-0L
Photo du bien
Photo du bien
Photo du bien
Photo du bien
Photo du bien
Photo du bien
Photo du bien
Photo du bien
Photo du bien
Photo du bien
Photo du bien
Photo du bien
Photo du bien
Photo du bien

Votre contact

Alexis
MOREL
Consultant département Activité / Logistique

06 10 02 72 59

a.morel@omnium1947.com
06 10 02 72 59
a.morel@omnium1947.com

Votre contact pour ce bien

Alexis
MOREL
Consultant département Activité / Logistique
06 10 02 72 59
a.morel@omnium1947.com

A LOUER – CORBAS – 6 061 m² divisibles à partir de 1 247 m²

Référence : 1076942-0L

Description

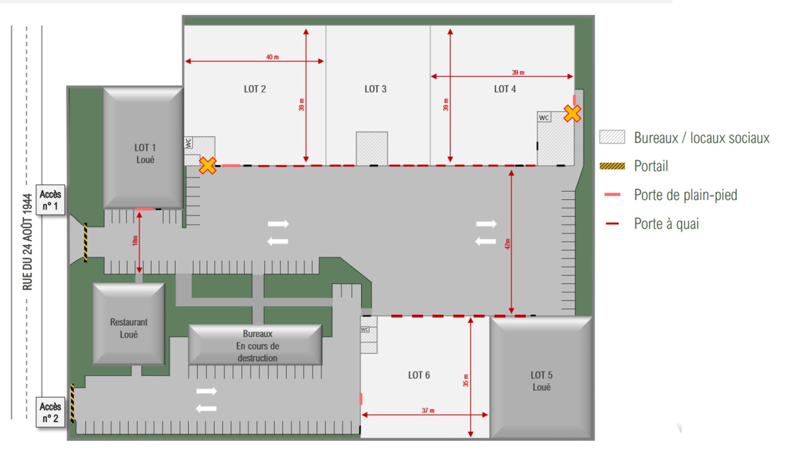
OMNIUM vous propose 3 locaux d'activité de 1 247, 1749 et 1298 m² environ, équipés de portes sectionnelles de plain-pied et de Portes à Quai. Locaux rénovés. Disponibilité immédiate. A proximité de la Rocade Est, du Boulevard Urbain Sud et de l'A46
Bus N° 87 / ZI1 Route Avenue de l'Industrie Route Rue du Dauphiné Route Boulevard Urbain Sud / Rocade Est Autoroute A46 Aéroport Lyon St Exupéry à 20 mn
Votre contact : Alexis MOREL Directeur département Activité / Logistique 06.10.02.72.59 Les informations sur les risques auxquels ce bien est exposé sont disponibles sur le site Géorisques : www.georisques.gouv.fr

Details

Type : Locaux d'activité

Surface : 6 061 m² divisibles à partir de 1 247 m²

Lieu : AVENUE DU 24 AOUT 1944 69960 CORBAS

Disponibilite : Après accord

  • Dans petit Parc d'Activité un local d'une surface totale de 1298 m² environ dont 50 m² environ de bureaux.
  • Bâtiments neufs ou rénovés.
  • * Murs en moellons et bardage
  • * Dalle béton
  • * Hauteur de 4 m sous poutres
  • * Chauffage par aérothermes gaz
  • * Eclairage Led
  • * EDF : Tarif jaune
  • * 1 Accès latéral par porte sectionnelle de plain-pied
  • * Nombreuses portes à quai
  • * Nombreuses places de stationnement
  • Surface RDC : 5887 m²
  • Nbr de portes à quai : 19
  • Nbr de portes plain pied : 3

Financier

Loyer : 8 € /HT/HC/m²/mois

Charges : 10 € m²/an HT

Taxes foncieres : 7 € m²/an

Frais d'actes : A prévoir en sus la charge du Preneur

Depot de garantie : 3 mois de loyer HT/HC

Honoraires : 15 % HT du loyer annuel HT HC à la charge du Preneur

Annonces similaires

A LOUER – SAINT PRIEST – 353 m² non divisibles
Locaux d'activité

A LOUER – SAINT PRIEST – 353 m² non divisibles

Omnium vous propose à la location un local d'activité d'une surface totale de 353m², idéalement situé au sein d'un parc...

A LOUER – CORBAS – 12 857 m² divisibles à partir de 2 408 m²
Locaux d'activité

A LOUER – CORBAS – 12 857 m² divisibles à partir de 2 408 m²

Omnium propose ces locaux d'activité à Corbas à la location. 4 grandes cellules avec des espaces modernes et fonctionnels :...

A LOUER – MIONS – 154 m² non divisibles
Locaux d'activité

A LOUER – MIONS – 154 m² non divisibles

OMNIUM vous propose dans un parc d'activité neuf plusieurs cellules de 154 m² environ pouvant être réunies en fonction de...

Demande de rendez-vous

A LOUER – CORBAS – 6 061 m² divisibles à partir de 1 247 m²

4 + 9 =