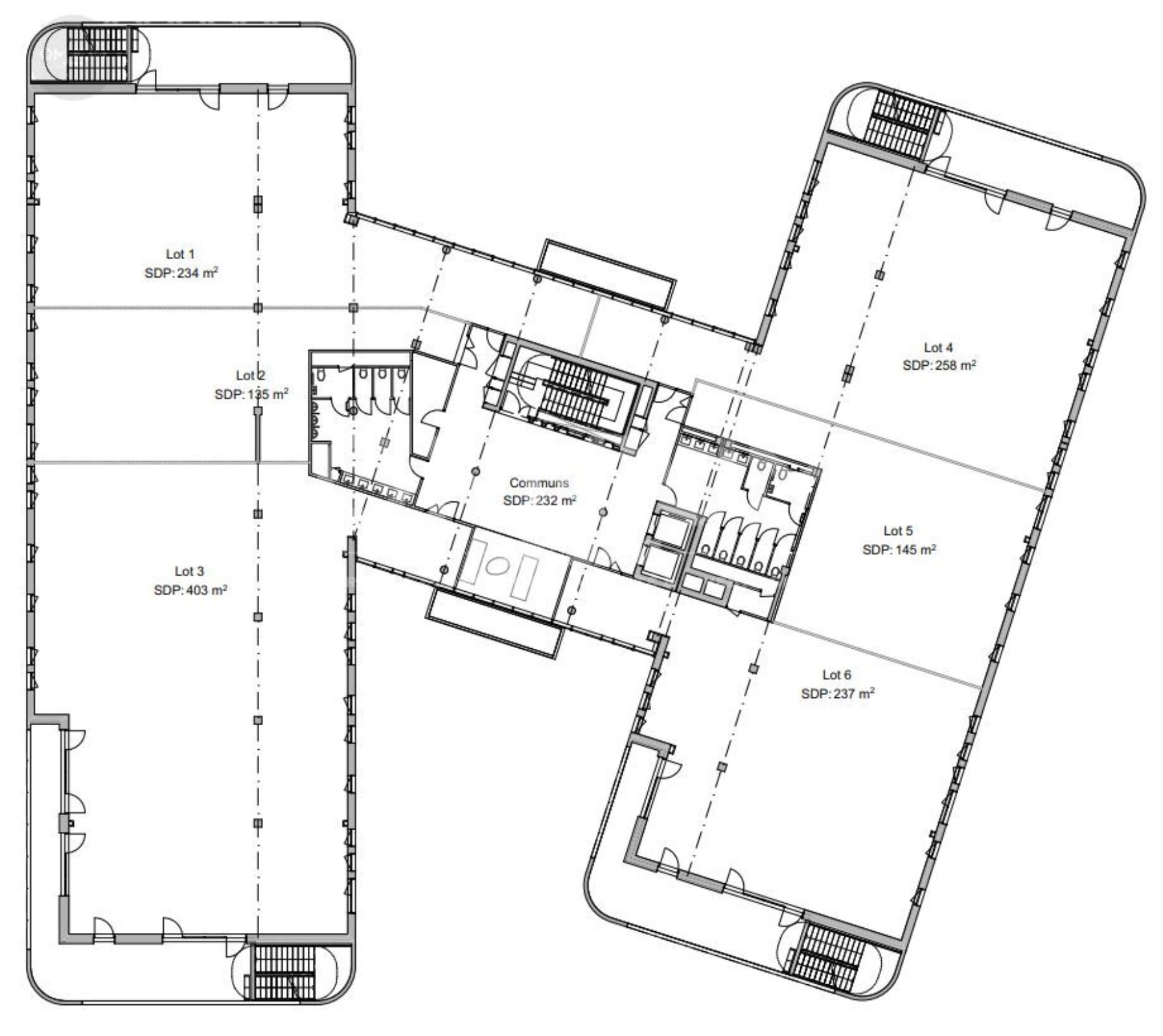
A LOUER – GENAS – 3905.66m² divisibles à partir de 175 m²
Référence : 1100273-0L
Votre contact
Sophie
MEZIN
Associée - Directrice Département Bureaux

06 67 30 99 26
s.mezin@omnium1947.com
06 67 30 99 26
s.mezin@omnium1947.com
Votre contact pour ce bien
Sophie
MEZIN
Associée - Directrice Département Bureaux
06 67 30 99 26
s.mezin@omnium1947.com
A LOUER – GENAS – 3905.66m² divisibles à partir de 175 m²
Référence : 1100273-0L
Description
OMNIUM vous propose à la location de nombreux plateaux de bureaux à la location dans un parc d'activité en construction à Genas.
De nombreux services seront à la disposition des utilisateurs.
Bus N° Zi5 / 48
Route Rocade Est à proximité immédiate
Autoroute A43 à 5 mn
Aéroport ST Exupéry à 15 mn
Votre contact : Sophie MEZIN
Directrice Générale - Associée
06 67 30 99 26
Les informations sur les risques auxquels ce bien est exposé sont disponibles sur le site Géorisques : www.georisques.gouv.fr
- RIE
- Centre d'affaire avec bureau individuel, salle de réunion et espaces séminaires
- Crèche de 30 berceaux
- Amphithéâtre pouvant accueillir jusqu'à 162
- personnes réservé aux locataires du site
- Une salle de sport
- Un service de restauration rapide
- Certification BREEAM Very Good
- Centrale solaire sur site
- Bornes de recharges électriques sur 50% du parc de stationnement à minima.
- Protection solaire mobile sur chaque vitrage.
- Gestion de la ressource en eau
- Gestion des déchets
- Matériaux bas carbone
- Immeuble indépendant
- Surface RDC : 1597 m²
Annonces similaires
Bureaux
A LOUER – GENAS – 792 m² divisibles à partir de340 m²
OMNIUM vous propose à la location de nombreux plateaux de bureaux à la location dans un parc d'activité neuf à...
Bureaux
EVEREST 4 – Genas – A VENDRE – GENAS – 515 m² non divisibles
OMNIUM vous propose à la vente un plateau de bureaux dans le parc d'activité neuf EverEst IV à Genas. Des...
Demande de rendez-vous
A LOUER – GENAS – 3905.66m² divisibles à partir de 175 m²