A VENDRE – LYON 9 – 510 m² non divisibles
Référence : 2154429-0V
Votre contact
Geoffrey
FANJAUD
Consultant Département Bureaux

06 17 46 80 88
g.fanjaud@omnium1947.com
06 17 46 80 88
g.fanjaud@omnium1947.com
Votre contact pour ce bien
Geoffrey
FANJAUD
Consultant Département Bureaux
06 17 46 80 88
g.fanjaud@omnium1947.com
A VENDRE – LYON 9 – 510 m² non divisibles
Référence : 2154429-0V
Description
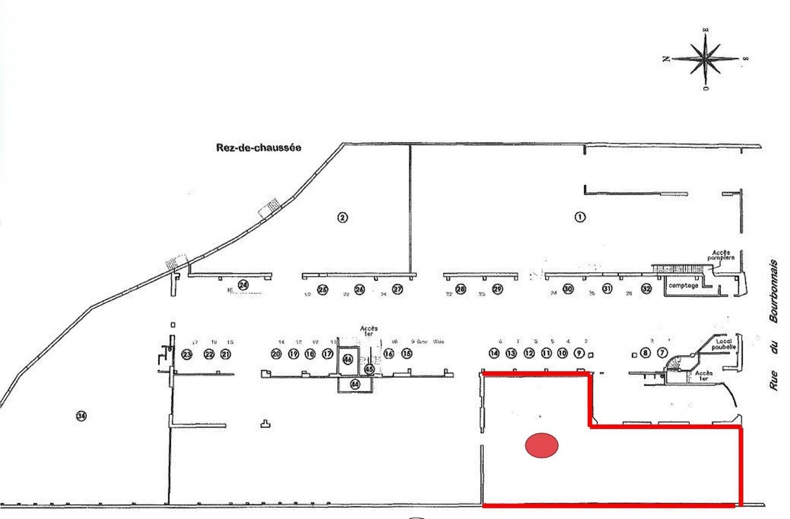
Omnium vous propose à la vente, un local mixte pour une surface de 510 m² répartie à parts égales entre activité et bureaux. Ce Bâtiment en bon état général, possède un accès plain-pied, une porte sectionnelle, des places de stationnements extérieures et il bénéficie de la climatisation.
En sus, 5 places de parkings.
Une belle opportunité à l'acquisition dans le secteur de Valmy - Lyon 9ème, un quartier urbain dynamique en pleine évolution, apprécié pour son accessibilité !
Bus Apollinaire Bourbonnais (Ligne 3, Ligne 19, Ligne 66), Marietton S. Apollinaire (Ligne 5, Ligne PL3)
SNCF Lyon-Vaise (Gare SNCF)
A 6 (Entrée M 6), A 6 (Sortie M 6)
Rocade Porte de Vaise (Périphérique Lyon)
Parking Vaise - 95 Rue Marietton (Parking)
Borne de recharge Volkswagen - ByMyCar - Vaise - powered by DRIVECO (Bornes de recharge)
Votre contact :
Votre contact : Geoffrey FANJAUD
Consultant Département Bureaux
06 17 46 80 88
Les informations sur les risques auxquels ce bien est exposé sont disponibles sur le site Géorisques : www.georisques.gouv.fr
- Bâtiment en bon état
- Espaces de stationnements extérieurs
- Hauteur libre min de 5 m sous poutre
- Accès porte plain pieds
- Mezzanine
- Structure: maçonnerie
- Sol: dalle industrielle
- Porte sectionnelle
- Climatisation
- Surface RDC : 510 m²
Annonces similaires
Bureaux
A LOUER – LYON 9 – 300 m² divisibles à partir de 110 m²
Omnium vous propose, à la location un bâtiment indépendant sur l'avenue Sidoine Apollinaire, à Lyon 9ème. D'une surface totale de...
Bureaux
A LOUER – LYON 9 – 139 m² non divisibles
Omnium vous propose à al location, sur l'avenue Sidoine Apollinaire Lyon 9, entre les quartiers Vaise , Gorge de Loup...
Demande de rendez-vous
A VENDRE – LYON 9 – 510 m² non divisibles