A VENDRE – LYON 9 – 510 m² non divisibles
Référence : 2153847-0V
Votre contact
Alexis
MOREL
Directeur Département Activité / Logistique

06 10 02 72 59
a.morel@omnium1947.com
06 10 02 72 59
a.morel@omnium1947.com
Votre contact pour ce bien
Alexis
MOREL
Directeur Département Activité / Logistique
06 10 02 72 59
a.morel@omnium1947.com
A VENDRE – LYON 9 – 510 m² non divisibles
Référence : 2153847-0V
Description
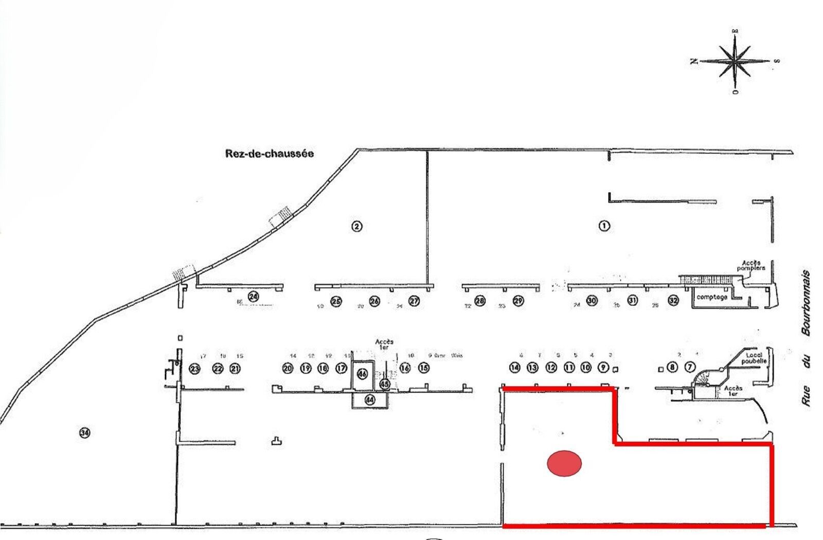
Omnium vous propose à la vente, un local mixte pour une surface de 510 m² répartie à parts égales entre activité et bureaux. Ce Bâtiment en bon état général, possède un accès plain-pied, une porte sectionnelle, des places de stationnements extérieures et il bénéficie de la climatisation.
En sus, des places de parkings.
Une belle opportunité à l'acquisition dans le secteur de Valmy - Lyon 9ème, un quartier urbain dynamique en pleine évolution, apprécié pour son accessibilité !
Bus Apollinaire Bourbonnais (Ligne 3, Ligne 19, Ligne 66), Marietton S. Apollinaire (Ligne 5, Ligne PL3)
SNCF Lyon-Vaise (Gare SNCF)
A 6 (Entrée M 6), A 6 (Sortie M 6)
Rocade Porte de Vaise (Périphérique Lyon)
Parking Vaise - 95 Rue Marietton (Parking)
Borne de recharge Volkswagen - ByMyCar - Vaise - powered by DRIVECO (Bornes de recharge)
Votre contact : Alexis MOREL
Directeur département Activité / Logistique
06.10.02.72.59
Les informations sur les risques auxquels ce bien est exposé sont disponibles sur le site Géorisques : www.georisques.gouv.fr
- Bâtiment en bon état
- Espaces de stationnements extérieurs
- Hauteur libre min de 5 m sous poutre
- Accès porte plain pieds
- Mezzanine
- Structure: maçonnerie
- Sol: dalle industrielle
- Porte sectionnelle
- Climatisation
- Parkings
- Surface RDC : 510 m²
- Haut. libre max. ss poutre : 5 m
- Ossature : Béton
Annonces similaires
Locaux d'activité
VENTE DE MURS OCCUPES – LYON 4 – 569 m²
Omnium vous présente à la vente, un bâtiment rénové en bon état, composé de 2 lots, mixant locaux d'activité en...
Locaux d'activité
A LOUER – LIMONEST – 3 124 m² divisibles à partir de 612 m²
Omnium vous propose à la location, au sein du Programme mixte MILEWAY PARKS de Limonest, trois cellules d'activités sur 3...
Demande de rendez-vous
A VENDRE – LYON 9 – 510 m² non divisibles