A VENDRE OU A LOUER – TAIN L’HERMITAGE – 138 m² non divisibles
Référence : 1425955-0
Votre contact
Mathieu
PAREDES
Associé -Directeur Département Commerces

06 12 77 67 54
m.paredes@omnium1947.com
06 12 77 67 54
m.paredes@omnium1947.com
Votre contact pour ce bien
Mathieu
PAREDES
Associé -Directeur Département Commerces
06 12 77 67 54
m.paredes@omnium1947.com
A VENDRE OU A LOUER – TAIN L’HERMITAGE – 138 m² non divisibles
Référence : 1425955-0
Description
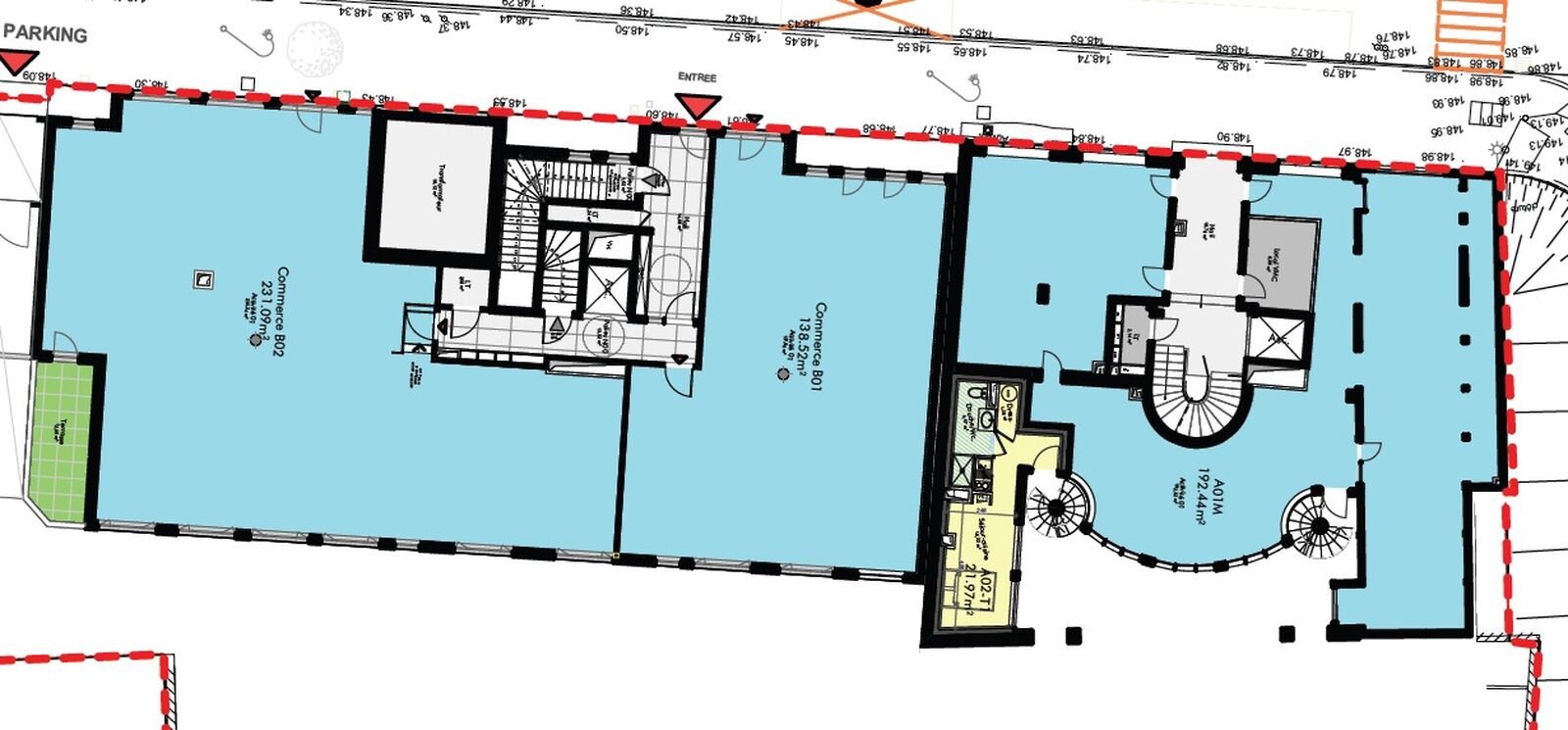
TAIN L'HERMITAGE - Nous vous proposons des locaux commerciaux à vendre ou à louer situés au pied d'immeubles neufs/réhabilités. Situés à proximité immédiate de la Gare SNCF et en direction du centre-ville, les locaux profitent d'une belle visibilité (flux véhicule et piéton).
Locaux disponibles courant 2027.
SNCF Gare Tain l'Hermitage
3 cellules disponibles à la vente ou à la location
192.44m², 231.09m², 138.52m²
- Locaux livrés clos couverts ,gaine en attente possible ,vente ou location suivant la demande, fluides en attente
- En sus, parkings envisageables
- Surface RDC : 138,52 m²
- Extracteur de fumées : oui
Annonces similaires
Locaux commerciaux
A VENDRE OU A LOUER – TAIN L’HERMITAGE – 192 m² non divisibles
TAIN L'HERMITAGE - Nous vous proposons des locaux commerciaux à vendre ou à louer situés au pied d'immeubles neufs/réhabilités. Situés...
Locaux commerciaux
A VENDRE OU A LOUER – TAIN L’HERMITAGE – 231 m² non divisibles
TAIN L'HERMITAGE - Nous vous proposons des locaux commerciaux à vendre ou à louer situés au pied d'immeubles neufs/réhabilités. Situés...
Demande de rendez-vous
A VENDRE OU A LOUER – TAIN L’HERMITAGE – 138 m² non divisibles