ARKO – A VENDRE – VILLEURBANNE – 3 906 m² divisibles à partir de 441m²
Référence : 1415687-0V
Votre contact
Sophie
MEZIN
Associée - Directrice Département Bureaux

06 67 30 99 26
s.mezin@omnium1947.com
06 67 30 99 26
s.mezin@omnium1947.com
Votre contact pour ce bien
Sophie
MEZIN
Associée - Directrice Département Bureaux
06 67 30 99 26
s.mezin@omnium1947.com
ARKO – A VENDRE – VILLEURBANNE – 3 906 m² divisibles à partir de 441m²
Référence : 1415687-0V
Description
ARKO - Une opération implantée au coeur du quartier Gratte-Ciel à Villeurbanne.
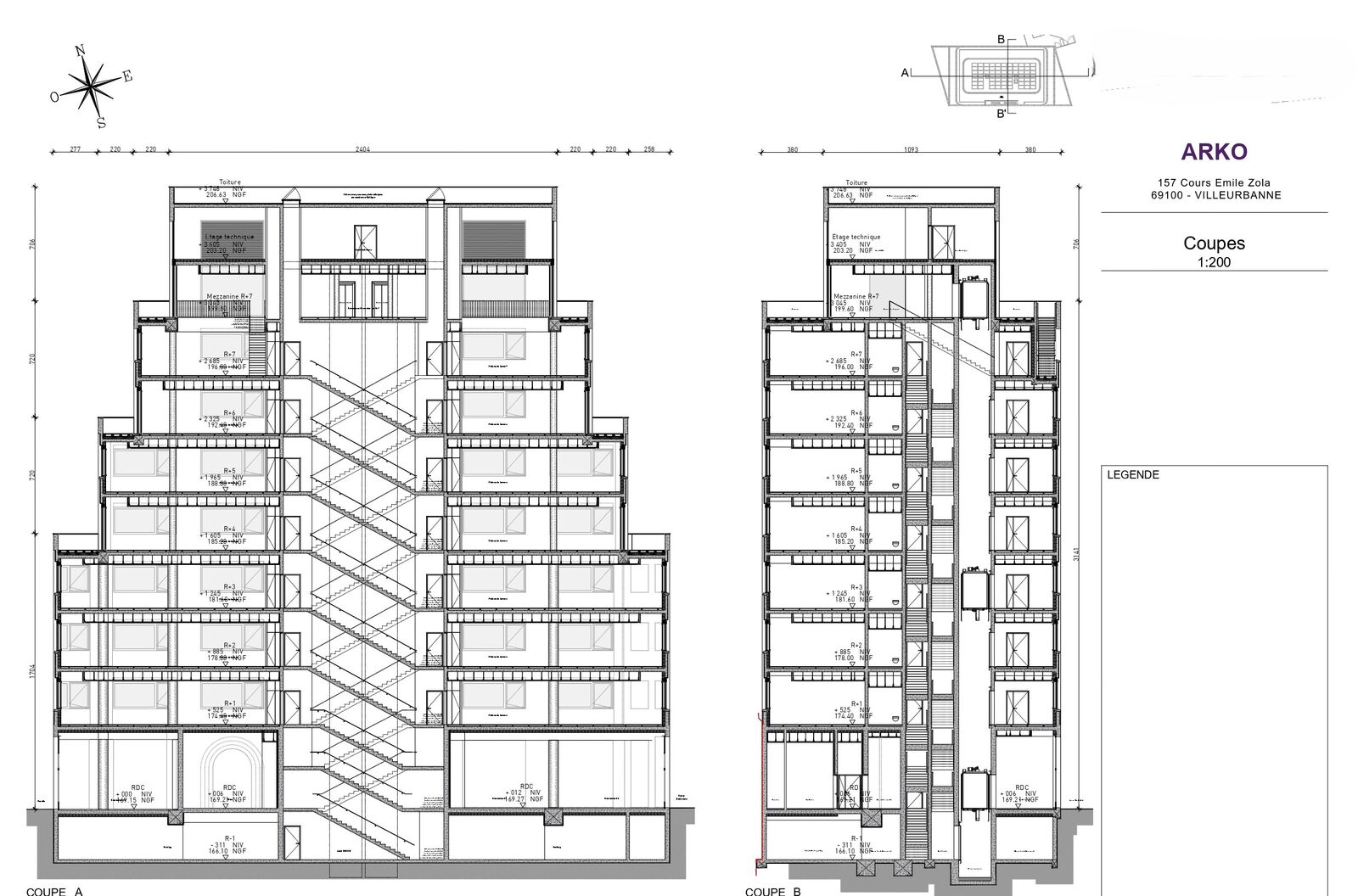
Un immeuble vertueux qui vise les certifications RE2020, HQE et BREEAM Very good, sur 7 niveaux, et qui propose des plateaux à la vente avec des espaces extérieurs privatifs.
Un projet intégré dans son environnement.
Facilement accessible et connecté par le réseau de transports, des parkings et local de vélos complètent cette offre.
Une opération COGEDIM conçu par l'atelier VERA;
N'hésitez pas à scanner le QR code pour votre visite virtuelle !
Bus Gratte Ciel (Ligne C26), Villeurbanne Centre (Ligne 27), Gratte-Ciel - Verlaine (Ligne 69)
SNCF Lyon-Part-Dieu (Gare SNCF)
Métro Gratte Ciel (Ligne A)
A 42, Pont de Croix-Luizet (Entrée), A 42, Pont de Croix-Luizet (Sortie), A 43 (Entrée Boulevard Laurent Bonnevay), A 43 (Sortie Les sept chemins, Bron Terraillon, Villeurbanne - Grandclément, Lyon - Montchat)
Votre contact : Sophie MEZIN
Directrice Générale - Associée
06 67 30 99 26
Les informations sur les risques auxquels ce bien est exposé sont disponibles sur le site Géorisques : www.georisques.gouv.fr
- - Plateaux : livrés en blanc
- - Douches / Vestiaire
- - 438 m² de Terrasses
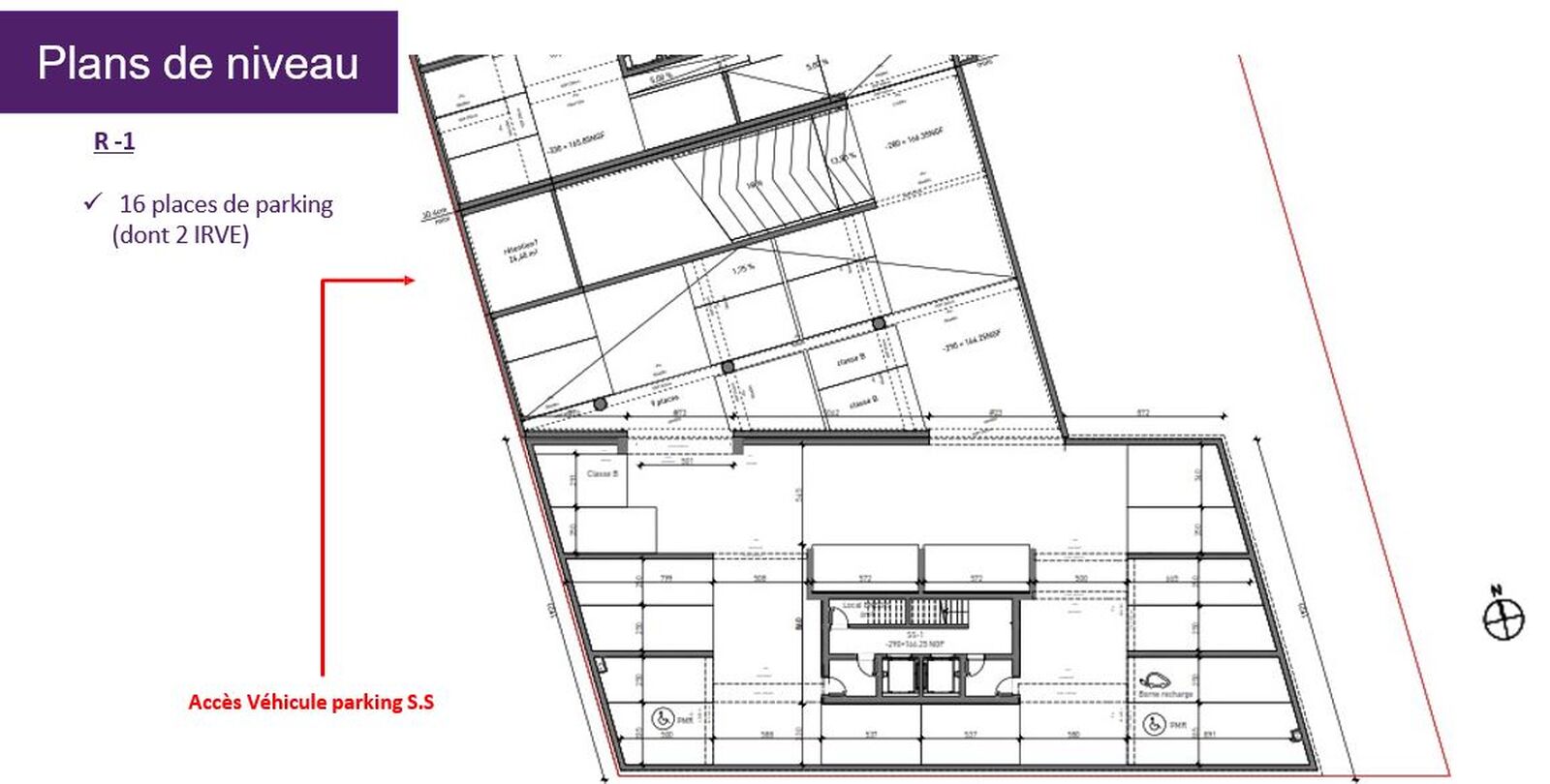
- - Parking : 16 places en sous-sol dont 2 équipées de bornes pour voitures électriques
- - Local vélos sécurisé de 92 m²
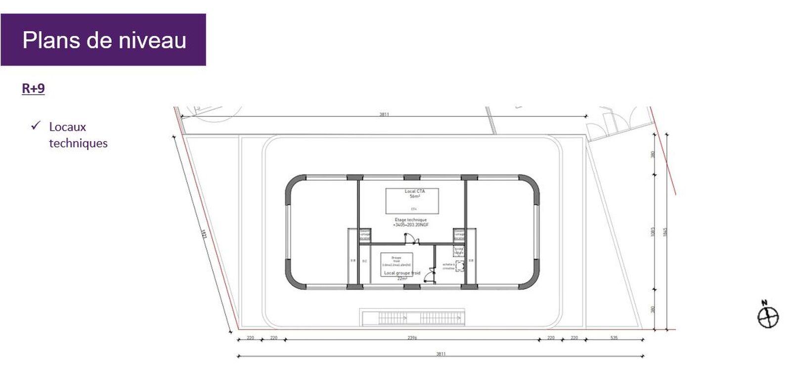
- - Production de chaleur : PAC + Géothermie
- - Production de froid : PAC + Géothermie
- - Panneaux photovoltaïques en toiture
- Immeuble indépendant
Annonces similaires
Bureaux
A LOUER – VILLEURBANNE – 291 m² divisibles à partir de 92 m²
OMNIUM vous propose deux lots de bureaux de 199m² et 92m² situés dans les quartier Gratte-Ciel de Villeurbanne. Proximité immédiate...
Bureaux
A VENDRE – VILLEURBANNE – 40 m² non divisibles
Découvrez sans plus tarder ce bureau idéalement situé à Villeurbanne, offrant 40 m² d'espace lumineux et fonctionnel, parfait pour accueillir...
Demande de rendez-vous
ARKO – A VENDRE – VILLEURBANNE – 3 906 m² divisibles à partir de 441m²