VENTE DE MURS OCCUPES – LYON 4 – 569 m²
Référence : 2161000-0V
Votre contact
Alexis
MOREL
Consultant département Activité / Logistique

06 10 02 72 59
a.morel@omnium1947.com
06 10 02 72 59
a.morel@omnium1947.com
Votre contact pour ce bien
Alexis
MOREL
Consultant département Activité / Logistique
06 10 02 72 59
a.morel@omnium1947.com
VENTE DE MURS OCCUPES – LYON 4 – 569 m²
Référence : 2161000-0V
Description
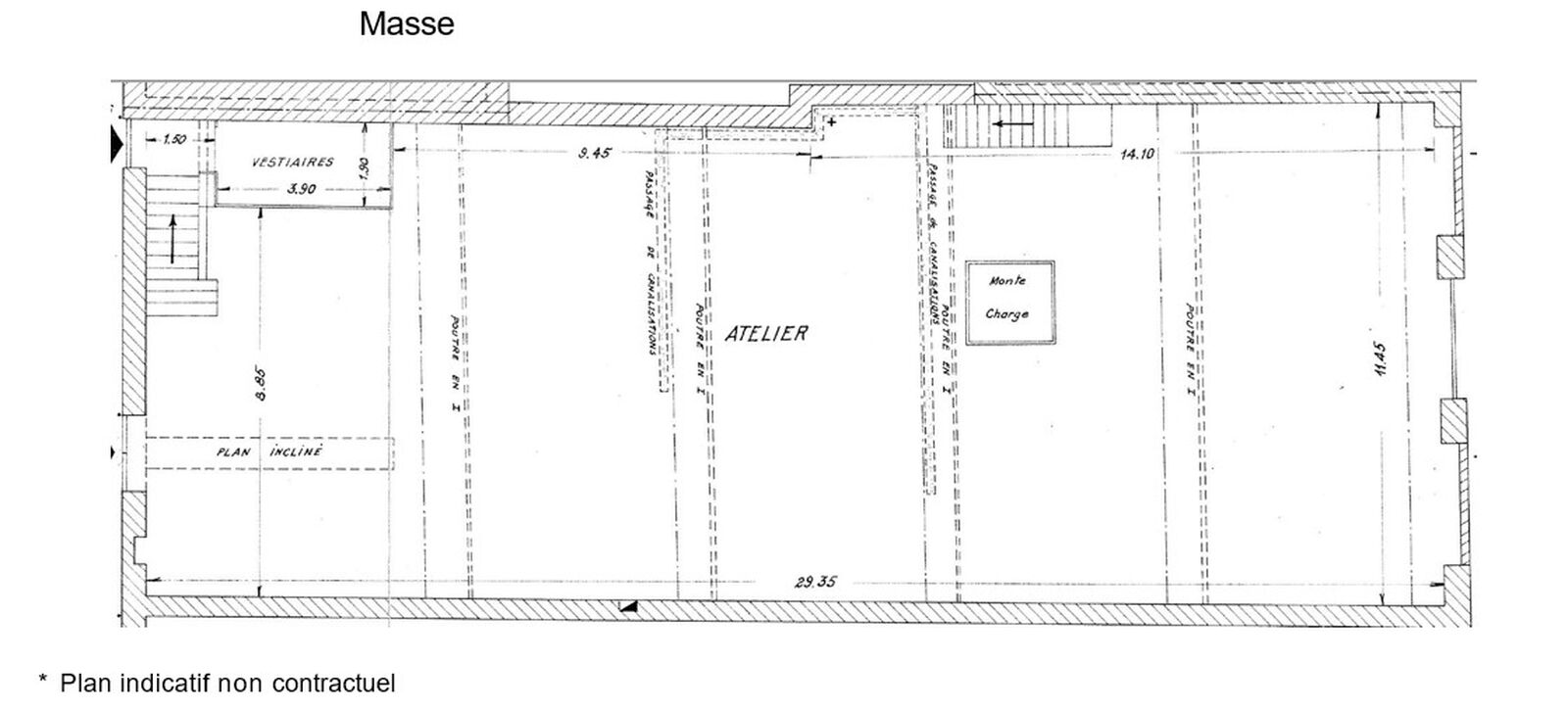
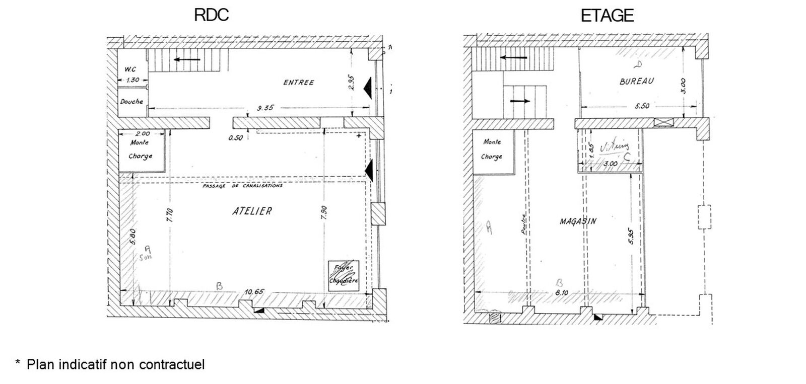
Omnium vous présente à la vente, un bâtiment rénové en bon état, composé de 2 lots, mixant locaux d'activité en RDC et bureaux en RDC et 1er. Ce bâtiment accueil deux locataires. Investissement à fort potentiel.
Superficie de 569 m², avec 379 m² de stockage et 190 m² de bureaux.
Ces espaces polyvalents, idéalement implantés au coeur de Lyon 4 -ème, environnement dynamique et urbain, constituent une belle opportunité.
Une adresse également connectée par les transports
Bus Place Cdt Arnaud (Ligne C13), Montée de la Boucle (Ligne 38), Artaud (Ligne S4)
SNCF Lyon-St-Paul (Gare SNCF)
A 42 (Entrée Bretelle 2 - La Pape), A 42 (Sortie Bretelle 2 - La Pape)
Rocade Porte de Croix-Rousse (Périphérique Lyon)
Parking Croix Rousse - 6 Rue Ruplinger (Parking)
Borne de recharge LY409 - Hôpital Croix-Rousse (Bornes de recharge)
Votre contact : Alexis MOREL
Directeur département Activité / Logistique
06.10.02.72.59
Les informations sur les risques auxquels ce bien est exposé sont disponibles sur le site Géorisques : www.georisques.gouv.fr
- Bâtiment en bon état, rénové.
- Hauteur libre min de 4m sous poutre
- 2 lots
- Lot 1 : 379 m² avec une espace stockage sous mezzanine.
- Lot 2 : 190 m², répartis en plateaux de bureaux sur 2 étages.
- Surface RDC : 379 m²
Annonces similaires
Locaux d'activité
A VENDRE – VILLEURBANNE – 3396 m² non divisibles
Omnium vous propose à proximité du Totem de Villeurbanne, un espace activité à la vente pour 727 m² au sous-sol,...
Locaux d'activité
A LOUER – VILLEURBANNE – 2592m² non divisibles
Omnium vous propose à proximité du Totem de Villeurbanne, un espace activité / show room de 2 461 m² à...
Demande de rendez-vous
VENTE DE MURS OCCUPES – LYON 4 – 569 m²